触臂套管绝缘罩

触臂套管

触臂套管绝缘罩
分享到:
此产品关键词:
触臂套管

触臂套管概述

 

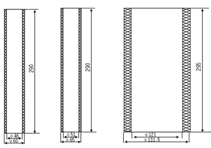
福州福一开电气有限公司,专业生产提供触壁套管等各种配电设施上用绝缘产品,本系列的触臂套管尺寸有φ46×290、φ50×290 φ120×295 ,还可按客户需要订制特殊产品。

 

触臂套管的大小尺寸图


订购须知:本图片及其它信息权供参考用,如有变动不另行通知,购买前请来电详细咨询。

产品型号名称:触臂套管